来源:成都鹏业软件 发布日期:2021-02-05 浏览量:10293
1.一键识别设备 仅识别一张图纸设备
操作步骤(方法一):①点底图按钮、进入底图状态;
②框选不鼠标图纸;按DELETE键隐藏(这时会把选中图纸隐藏)
③在点一键识别设备功能
操作步骤(方法二):①按住CTRL键;双击不需要识别的图纸区域

②把锁定该区域不参与识别打上勾
③在点一键识别设备功能
2.怎么划分异形分区
操作步骤:①点分区功能—清除全部分区(删除分区);分区不允许重贴所以必须要先删除当前图纸分区。

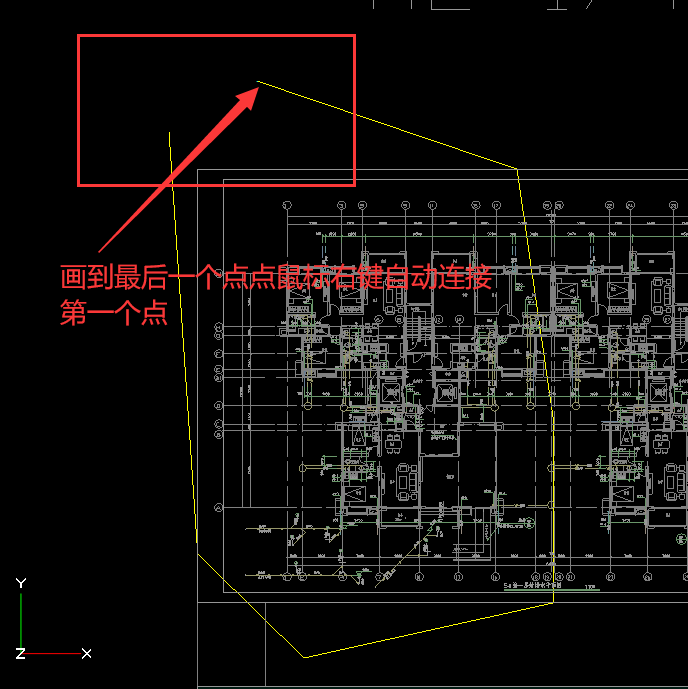
②划分图纸分区;直接画是矩形分区;按住CTRL键画可以画多边形(注意三点确定一个面、最后一个点可以不用去和第一个连接、直接点鼠标右键会自动连接)

3.为什么综合布线和火灾报警按钮灰色不可用

操作步骤:
①首先检查图纸所属专业是否选择的电气专业
⑴图纸名称上鼠标右键—底图属性

⑵选择电气设备安装工程

②工程量表上当前项选中必须是管线项

4.怎么删除图上选中的全部数据
操作步骤:
①图上去框选需要删除的计算图元
②按DELETE键仅删除当前项数据(鼠标右键—删除选中图元;只会删除当前18项计算图元)

③鼠标右键—删除所有选中计算图元(把所有选中成深蓝色的计算图元全部删除、保留工程量表上数据项)

5.怎么快速统计阀门并且区分阀门规格
操作步骤:①首先把阀门识别在一项(连接阀门的管道也区分规格)

②鼠标右键按管线拆分设备

③按管线规格拆分点确定即可

6.怎么快速定位文字(设备)位置
操作步骤:①按CTRL+F 打开查找功能

②建议首先把底图颜色放到最暗在给定条件查找

7.点击工程量表上的项;图形区域不乱跳
操作步骤:把图形区域下面锁点亮

8.怎么只显示当前一项、或者几项计算图元
操作步骤:
①按F4或者图形区域下方过滤显示按钮

②这时工程量表上会出现过滤显示列

③需要显示那项在过滤那一列打上勾
9.工程量表上工程量那一列是最终工程量、怎么查看乘倍数之前的数据

操作步骤:点击设置列把基本量打上勾(基本量就是没有乘倍数之前的数据)

10.工程量表上怎么批量乘倍数
操作步骤:①按住CTRL键(SHIFTT键)去选中需要乘倍数的项

②鼠标右键—批量修改工程量(可以按住CTRL键点选区部系会把整个区部系下面的数据一次全部选中)
